Wrocław, Krzyki, Tarnogaj

Mieszkanie na sprzedaż

Opis nieruchomości

Do sprzedaży wyjątkowe,przestronne mieszkanie z dużym balkonem  na pięknym, zielonym osiedlu tuż przy malowniczej  rzece Oławie.
Gotowe już w 3 kwartale 2026.
Inwestycja w standardzie premium, zlokalizowana  w otoczeniu bulwarów rzecznych, Parku na Niskich Łąkach i Lasu Rakowieckiego. Nowoczesna architektura, eleganckie wnętrza, wysoka jakość materiałów oraz doskonała lokalizacja sprawiają, że jest to wyjątkowe miejsce na mapie Wrocławia.


Dostępne różne układy mieszkań na wszystkich piętrach - zadzwoń i umów się na prezentację!
Możliwość zakupu mieszkania z wykończeniem pod klucz.

NIERUCHOMOŚĆ

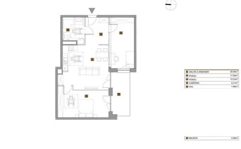
Słoneczne, przestronne  mieszkanie 3-pokojowe o powierzchni ok.72 m2 usytuowane na pierwszym  piętrze apartamentu.

Mieszkanie składa się z przestronnego,ustawnego  pokoju dziennego z aneksem kuchennym (25m2), dwóch dużych  sypialni(18 i 15m2), przedpokoju z miejscem na szafę, dużej łazienki(6,40m2)  oraz dodatkowo balkonu 9m2.
Ekspozycja:południe/zachód.




Największe atuty inwestycji:
  • Bezpośrednie sąsiedztwo bulwarów nadrzecznych zapewni ciszę i spokój przyszłym mieszkańcom
  • W sąsiedztwie znajdują się  ścieżki rowerowe wzdłuż rzeki Oławy, Park na Niskich Łąkach oraz Las Rakowiecki
  • Widok na rzekę
  • Bogata infrastruktura na osiedlu i w najbliższej okolicy:Żabki,kawiarnie,salony kosmetyczne i fryzjerskie ,sklepy(m.in Selgros) Fitness Academy i placówki edukacyjne (szkoły,przedszkola,żłobki)
  • Podziemne i naziemne miejsca parkingowe, komórki lokatorskie, rowerownie
  • W ramach osiedla powstaną lokale usługowe, strefy rekreacji oraz plac zabaw dla dzieci. Całość uzupełnią ogrody kwiatowe, krzewy i drzewa, tworząc znakomite miejsce do odpoczynku i relaksu.
  • 2,5 km do ścisłego centrum
  • Doskonała komunikacja z resztą miasta:
- 4 minuty pieszo do przystanku autobusowego i tramwajowego
- możliwy szybki wyjazd z Wrocławia dzięki łatwemu dojazdowi do autostrady A4




CENA
858.000-cena promocyjna,oferta ograniczona czasowo
Możliwość nabycia miejsca postojowego w garażu podziemnym oraz komórki lokatorskiej.
Zakup zwolniony z podatku PCC.
Kupujący nie płaci prowizji.

TERMIN REALIZACJI:Gotowe już w III kwartale tego roku.

Zdjęcia przedstawione w ofercie są wizualizacjami.

Mieszkanie jest oddawane w stanie deweloperskim, do własnej aranżacji. Oferujemy pomoc w wykończeniu mieszkania pod klucz oraz uzyskaniu atrakcyjnego kredytu na zakup nieruchomości.
Posiadamy w swojej ofercie inne mieszkania 1-5  pokojowe na tym osiedlu oraz innych inwestycjach.
w okolicy. Zapraszam do kontaktu.

Kasia Chajec

kasia@alfama-nieruchomosci.pl
Alfama Nieruchomości S.C.

Powyższa oferta ma charakter informacyjny i nie stanowi oferty handlowej w rozumieniu art. 66 §1 Kodeksu Cywilnego.
 

Nota prawna

Opis oferty zawarty na stronie internetowej sporządzany jest na podstawie oględzin nieruchomości oraz informacji uzyskanych od właściciela, może podlegać aktualizacji i nie stanowi oferty określonej w art. 66 i następnych K.C.

Szczegóły oferty

Symbol oferty ALFM-MS-4318
Powierzchnia 72,00 m²
Liczba pokoi 3
Piętro 1
Rodzaj budynku blok
Standard
Liczba pięter w budynku 5
Rok budowy 2026
Winda tak

Kalkulator kredytowy

EUR
%
Wysokość raty

Kalkulator kosztów

EUR
EUR
EUR
EUR
EUR
EUR
%
EUR
Podatek od czynności cywilno-prawnych
Taksa notarialna (opłata notarialna)
VAT od taksy notarialnej (opłaty notarialnej)
Wniosek do WKW
VAT od wniosku do WKW
Prowizja agencji nieruchomości
VAT od prowizji agencji nieruchomości
Wypisy aktu notarialnego - około
RAZEM (cena + opłaty)

Podobne oferty

mieszkanie na sprzedaż - Wrocław, Stare Miasto

mieszkanie na sprzedaż

Wrocław, Stare Miasto
2 pokoje 38,00 m2 19 471,05 zł/m2 4 577,76 EUR/m2
mieszkanie na sprzedaż - Wrocław, Krzyki

mieszkanie na sprzedaż

Wrocław, Krzyki
3 pokoje 55,30 m2 12 296,56 zł/m2 2 891,00 EUR/m2
mieszkanie na sprzedaż - Wrocław, Psie Pole, Lipa Piotrowska

mieszkanie na sprzedaż

Wrocław, Psie Pole, Lipa Piotrowska
3 pokoje 56,00 m2 11 196,43 zł/m2 2 632,35 EUR/m2
nowa oferta
mieszkanie na sprzedaż - Wrocław, Fabryczna, Maślice

mieszkanie na sprzedaż

Wrocław, Fabryczna, Maślice
3 pokoje 59,00 m2 11 874,58 zł/m2 2 791,79 EUR/m2

Napisz do nas

Proszę wypełnić to pole
Proszę wypełnić to pole
Proszę wypełnić to pole
Proszę wypełnić to pole
Trwa wysyłanie...

Ta strona wykorzystuje pliki cookies w celach statystycznych oraz w celu dostosowania naszych serwisów do indywidualnych potrzeb klientów. Zmiany ustawień dotyczących plików cookie można dokonać w dowolnej chwili modyfikując ustawienia przeglądarki. Korzystanie z tej strony bez zmian ustawień dotyczących cookies oznacza, że będą one zapisane w pamięci urządzenia.

rozumiem