Wrocław, Fabryczna, Nowe Żerniki

Mieszkanie na sprzedaż

Opis nieruchomości

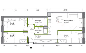
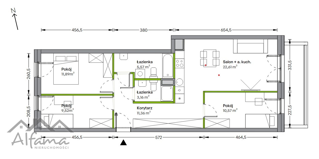
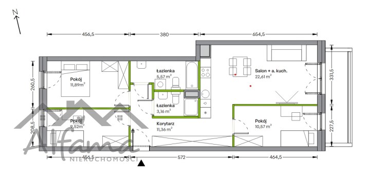
Przestronne 4-pokojowe mieszkanie|Dwustronne| Słoneczne| Nowe Żerniki |Gotowe- Lato 2026

Na sprzedaż przestronne mieszkanie o powierzchni 74,68m², położone na czwartym piętrze nowoczesnego budynku z windą. Układ został zaprojektowany z myślą o wygodzie i funkcjonalności:

  • Salon z aneksem kuchennym 
    Przestronna część dzienna z dużymi przeszkleniami, która zapewnia naturalne światło przez cały dzień. Aneks kuchenny ustawny, z miejscem na pełną zabudowę oraz stół jadalniany. Z salonu wyjście na duży balkon – idealny na poranną kawę czy popołudniowy relaks.

  • 3 Ustawne Sypialnie

  • 2 Łazienki
    Z miejscem na wannę/prysznic, umywalkę i pralkę.

  • Korytarz Przewidziano w nim miejsce na pojemne szafy w zabudowie.

Dzięki dwustronnej ekspozycji(wschód/zachód) wnętrza są doskonale doświetlone, a przestrzeń dzienna wyjątkowo przytulna.

  •  Dodatkowo duży balkon(6,40m2).
 

Atuty lokalizacji – Nowe Żerniki:

  • nowoczesne osiedle projektowane z myślą o komforcie mieszkańców

  • pełna infrastruktura w zasięgu kilku minut: sklepy, restauracje,  przedszkola, punkty usługowe,placówki medyczne

  • duży, centralny plac zabaw i przestrzenie rekreacyjne – idealne dla rodzin z dziećmi

  • dogodne połączenia komunikacyjne – w pobliżu linia tramwajowa zapewniająca szybki dojazd do centrum

  • liczne tereny zielone, ścieżki spacerowe i rowerowe

  • wygodny dojazd do autostradowej obwodnicy Wrocławia

Dodatkowe informacje:

  • rynek pierwotny – brak podatku PCC

  • możliwość zakupu miejsca postojowego 

Mieszkanie stanowi doskonały wybór dla rodzin poszukujących wygodnej i dobrze skomunikowanej lokalizacji w dynamicznie rozwijającej się części Wrocławia.

CENA:

Mieszkanie: 843.000 PLN
Możliwość zakupu miejsca postojowego.

Zakup zwolniony z podatku PCC.

Kupujący nie płaci prowizji.



Zdjęcia przedstawione w ofercie są wizualizacjami.

Mieszkanie jest oddawane w stanie deweloperskim, do własnej aranżacji. Oferujemy pomoc w wykończeniu mieszkania pod klucz oraz uzyskaniu kredytu na zakup nieruchomości.


Posiadamy w swojej ofercie inne mieszkania 1-4 pokojowe w tej inwestycji oraz na innych osiedlach na Nowych Żernikach.Zapraszam do kontaktu.


kasia@alfama-nieruchomosci.pl
Alfama Nieruchomości S.C.


 

Powyższa oferta ma charakter informacyjny i nie stanowi oferty handlowej w rozumieniu art. 66 §1 Kodeksu Cywilnego.

Pośrednik odpowiedzialny zawodowo za wykonanie umowy pośrednictwa: Katarzyna Chajec (licencja nr: 23503).

Nota prawna

Opis oferty zawarty na stronie internetowej sporządzany jest na podstawie oględzin nieruchomości oraz informacji uzyskanych od właściciela, może podlegać aktualizacji i nie stanowi oferty określonej w art. 66 i następnych K.C.

Szczegóły oferty

Symbol oferty ALFM-MS-4350
Powierzchnia 75,00 m²
Powierzchnia balkonów/tarasów 9,92 m²
Liczba pokoi 4
Piętro 4
Rodzaj budynku apartamentowiec
Standard
Opłaty wg liczników CO, prąd, woda
Liczba pięter w budynku 7
Garaż garaż pod budynkiem
Stan lokalu deweloperski
Stan prawny Własność
Okna PCV
Balkon duży
Liczba balkonów 1
Rok budowy 2026
Otoczenie działki zabudowane
Ogrzewanie miejskie
Winda tak
Liczba wind 1
Rolety antywłamaniowe tak

Pomieszczenia

Rodzaj kuchni aneks kuchenny - połączony z salonem
Typ łazienki razem z wc
Liczba przedpokoi 1

Lokalizacja

Kalkulator kredytowy

EUR
%
Wysokość raty

Kalkulator kosztów

EUR
EUR
EUR
EUR
EUR
EUR
%
EUR
Podatek od czynności cywilno-prawnych
Taksa notarialna (opłata notarialna)
VAT od taksy notarialnej (opłaty notarialnej)
Wniosek do WKW
VAT od wniosku do WKW
Prowizja agencji nieruchomości
VAT od prowizji agencji nieruchomości
Wypisy aktu notarialnego - około
RAZEM (cena + opłaty)

Podobne oferty

mieszkanie na sprzedaż - Wrocław, Stare Miasto

mieszkanie na sprzedaż

Wrocław, Stare Miasto
2 pokoje 38,00 m2 19 471,05 zł/m2 4 584,66 EUR/m2
mieszkanie na sprzedaż - Wrocław, Krzyki

mieszkanie na sprzedaż

Wrocław, Krzyki
3 pokoje 55,30 m2 12 296,56 zł/m2 2 895,35 EUR/m2
mieszkanie na sprzedaż - Wrocław, Psie Pole, Lipa Piotrowska

mieszkanie na sprzedaż

Wrocław, Psie Pole, Lipa Piotrowska
3 pokoje 56,00 m2 11 196,43 zł/m2 2 636,32 EUR/m2
nowa oferta
mieszkanie na sprzedaż - Wrocław, Krzyki, Partynice

mieszkanie na sprzedaż

Wrocław, Krzyki, Partynice
2 pokoje 39,00 m2 15 769,23 zł/m2 3 713,03 EUR/m2

Napisz do nas

Proszę wypełnić to pole
Proszę wypełnić to pole
Proszę wypełnić to pole
Proszę wypełnić to pole
Trwa wysyłanie...

Ta strona wykorzystuje pliki cookies w celach statystycznych oraz w celu dostosowania naszych serwisów do indywidualnych potrzeb klientów. Zmiany ustawień dotyczących plików cookie można dokonać w dowolnej chwili modyfikując ustawienia przeglądarki. Korzystanie z tej strony bez zmian ustawień dotyczących cookies oznacza, że będą one zapisane w pamięci urządzenia.

rozumiem