Wrocław, Krzyki, Tarnogaj

Mieszkanie na sprzedaż

Opis nieruchomości

Do sprzedaży piękne,narożne mieszkanie 3-pokojowe z dużym balkonem na nowym, zielonym osiedlu w samym sercu Tarnogaju.
Gotowe do odbioru!



Oferta bez prowizji, bezpośrednio od dewelopera.
Dostępne różne układy mieszkań na wszystkich piętrach - zadzwoń i umów się na prezentację!
Zapewniam pomoc w uzyskaniu kredytu oraz w wykończeniu mieszkania pod klucz.

NIERUCHOMOŚĆ

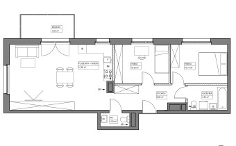
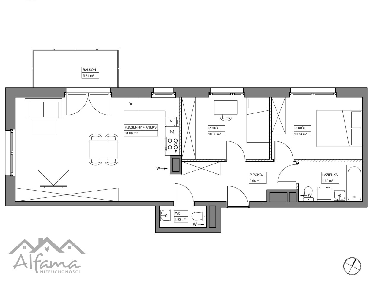
Przestronne,narożne mieszkanie 3-pokojowe o powierzchni 68,20 m2 usytuowane na pierwszym piętrze budynku wielorodzinnego.

Mieszkanie składa się z przestronnego pokoju dziennego z aneksem kuchennym(32m2), dwóch dużych  sypialni, przedpokoju z miejscem na szafę, łazienki,wc  oraz dodatkowo balkonu  o powierzchni ok.6m2.

Ekspozycja północno-zachodnia.



Największe atuty inwestycji:
  • Bezpośrednie sąsiedztwo parku Tarnogajskiego i Wschodniego zapewni ciszę i spokój przyszłym mieszkańcom
  • Bogata infrastruktura na osiedlu i w najbliższej okolicy:Żabki,kawiarnie,piekarnia, pizzeria,salony kosmetyczne i fryzjerskie , obiekty sportowe i placówki edukacyjne
  • Podziemne i naziemne miejsca parkingowe, komórki lokatorskie, rowerownie,stacja ładowania samochodów elektrycznych
  • System Smart Home w standardzie
  • Osiedle monitorowane i chronione
  • Doskonała komunikacja z resztą miasta:
- 3 minuty pieszo do przystanku autobusowego
- 5 minut pieszo do pętli tramwajowej
- ok. 10 minut jazdy autem do Dworca Głównego i ok. 15 minut do wrocławskiego Rynku
- bliskość głównych arterii komunikacyjnych, tj. alei Armii Krajowej oraz ul. Bardzkiej i Krakowskiej, możliwy szybki wyjazd z Wrocławia dzięki łatwemu dojazdowi do autostrady A4


CENA

Mieszkanie: 758.000-cena po rabacie
Miejsce postojowego w garażu podziemnym oraz komórka lokatorska-zakup obowiązkowy,
Zakup zwolniony z podatku PCC.
Kupujący nie płaci prowizji.

TERMIN REALIZACJI: Gotowe do odbioru!

Zdjęcia przedstawione w ofercie są wizualizacjami.

Mieszkanie jest oddawane w stanie deweloperskim, do własnej aranżacji. Oferujemy pomoc w wykończeniu mieszkania pod klucz oraz uzyskaniu atrakcyjnego kredytu na zakup nieruchomości.
Posiadamy w swojej ofercie inne mieszkania 2,3 i 4  pokojowe na tym osiedlu oraz innych inwestycjach.
w okolicy. Zapraszam do kontaktu.

Kasia Chajec
tel.+ 48 882 714 302
kasia@alfama-nieruchomosci.pl
Alfama Nieruchomości S.C.

Powyższa oferta ma charakter informacyjny i nie stanowi oferty handlowej w rozumieniu art. 66 §1 Kodeksu Cywilnego.

Zapraszam do współpracy.

Nota prawna

Opis oferty zawarty na stronie internetowej sporządzany jest na podstawie oględzin nieruchomości oraz informacji uzyskanych od właściciela, może podlegać aktualizacji i nie stanowi oferty określonej w art. 66 i następnych K.C.

Szczegóły oferty

Symbol oferty ALFM-MS-4062
Powierzchnia 68,20 m²
Powierzchnia użytkowa 68,20 m²
Liczba pokoi 3
Piętro 1
Rodzaj budynku blok
Standard
Liczba pięter w budynku 5
Rok budowy 2025
Winda tak

Kalkulator kredytowy

EUR
%
Wysokość raty

Kalkulator kosztów

EUR
EUR
EUR
EUR
EUR
EUR
%
EUR
Podatek od czynności cywilno-prawnych
Taksa notarialna (opłata notarialna)
VAT od taksy notarialnej (opłaty notarialnej)
Wniosek do WKW
VAT od wniosku do WKW
Prowizja agencji nieruchomości
VAT od prowizji agencji nieruchomości
Wypisy aktu notarialnego - około
RAZEM (cena + opłaty)

Podobne oferty

mieszkanie na sprzedaż - Wrocław, Psie Pole, Lipa Piotrowska

mieszkanie na sprzedaż

Wrocław, Psie Pole, Lipa Piotrowska
2 pokoje 42,20 m2 12 985,78 zł/m2 3 068,40 EUR/m2
mieszkanie na sprzedaż - Wrocław, Psie Pole, Lipa Piotrowska

mieszkanie na sprzedaż

Wrocław, Psie Pole, Lipa Piotrowska
3 pokoje 55,00 m2 11 170,91 zł/m2 2 639,57 EUR/m2
mieszkanie na sprzedaż - Wrocław, Psie Pole, Sołtysowice

mieszkanie na sprzedaż

Wrocław, Psie Pole, Sołtysowice
2 pokoje 44,00 m2 13 295,45 zł/m2 3 141,57 EUR/m2
mieszkanie na sprzedaż - Wrocław, Psie Pole, Lipa Piotrowska

mieszkanie na sprzedaż

Wrocław, Psie Pole, Lipa Piotrowska
3 pokoje 55,00 m2 10 570,91 zł/m2 2 497,79 EUR/m2

Napisz do nas

Proszę wypełnić to pole
Proszę wypełnić to pole
Proszę wypełnić to pole
Proszę wypełnić to pole
Trwa wysyłanie...

Ta strona wykorzystuje pliki cookies w celach statystycznych oraz w celu dostosowania naszych serwisów do indywidualnych potrzeb klientów. Zmiany ustawień dotyczących plików cookie można dokonać w dowolnej chwili modyfikując ustawienia przeglądarki. Korzystanie z tej strony bez zmian ustawień dotyczących cookies oznacza, że będą one zapisane w pamięci urządzenia.

rozumiem