Na sprzedaż funkcjonalne,narożne mieszkanie 4-pokojowe z tarasem na nowym, kameralnym osiedlu przy ul. Nowodworskiej we Wrocławiu.
Odbiór już w marcu 2026 roku!
Oferta bez prowizji i bez podatku PCC – zakup bezpośrednio od dewelopera.
Możliwość wykończenia „pod klucz” według indywidualnych preferencji.
Słoneczne, funkcjonalne mieszkanie o powierzchni 55,75 m² usytuowane na 1. piętrze nowoczesnego budynku z windą.
Ekspozycja wschodnio/północna.
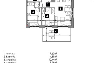
Układ pomieszczeń:
Mieszkanie zaprojektowane z myślą o maksymalnej funkcjonalności i komforcie użytkowania. Duże okna zapewniają naturalne doświetlenie i optycznie powiększają przestrzeń.
Cena: 752.000 zł
Możliwość zakupu miejsca postojowego w garażu podziemnym oraz komórki lokatorskiej.
To osiedle kompletne, samowystarczalne, z pełną infrastrukturą handlowo-usługową, a do tego świetnie skomunikowane.
Inwestycja położona jest w dynamicznie rozwijającej się, zielonej części Wrocławia. Idealna dla rodzin i osób szukających wygody życia w mieście.
Kupujący nie płaci prowizji.
Dostępne również inne mieszkania 2-, 3- i 4-pokojowe w tej inwestycji.
Skontaktuj się i poznaj szczegóły oferty:
Katarzyna Chajec
Powyższa oferta ma charakter informacyjny i nie stanowi oferty handlowej w rozumieniu art. 66 § 1 Kodeksu Cywilnego.



