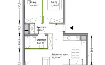
Na sprzedaż przestronne mieszkanie o powierzchni 63 m², położone na 3. piętrze nowoczesnego budynku z windą. Układ został zaprojektowany z myślą o wygodzie i funkcjonalności:
Salon z aneksem kuchennym – 33,31 m²
Przestronna część dzienna z dużymi przeszkleniami, która zapewnia naturalne światło przez cały dzień. Aneks kuchenny ustawny, z miejscem na pełną zabudowę oraz stół jadalniany(możliwość wydzielenia kuchni) Z salonu wyjście na balkon 4 m² – idealny na poranną kawę czy popołudniowy relaks.
Sypialnia – 11,13 m²
Ustawny pokój z miejscem na duże łóżko i szafę w zabudowie.
Pokój – 9,49 m²
Świetnie sprawdzi się jako pokój dziecka, gabinet lub dodatkowa sypialnia.
Łazienka – 4,57 m²
Z miejscem na wannę/prysznic, umywalkę i pralkę.
Korytarz – 5,41 m²
Przewidziano w nim miejsce na pojemne szafy w zabudowie.
Dzięki południowej ekspozycji wnętrza są doskonale doświetlone, a przestrzeń dzienna wyjątkowo przytulna.
Mieszkanie dwustronne:północ/południe.Atuty mieszkania:
funkcjonalny, rodzinny układ – dwie sypialnie oraz przestronny salon z aneksem/możliwość wydzielenia kuchni
mieszkanie w stanie deweloperskim, dające możliwość dowolnej aranżacji wnętrz
Atuty lokalizacji – Nowe Żerniki:
nowoczesne osiedle projektowane z myślą o komforcie mieszkańców
pełna infrastruktura w zasięgu kilku minut: sklepy, restauracje, przedszkola, punkty usługowe,placówki medyczne
duży, centralny plac zabaw i przestrzenie rekreacyjne – idealne dla rodzin z dziećmi
dogodne połączenia komunikacyjne – w pobliżu linia tramwajowa zapewniająca szybki dojazd do centrum
liczne tereny zielone, ścieżki spacerowe i rowerowe
wygodny dojazd do autostradowej obwodnicy Wrocławia
Dodatkowe informacje:
rynek pierwotny – brak podatku PCC
możliwość zakupu miejsca postojowego i komórki lokatorskiej (opcjonalnie)
Mieszkanie stanowi doskonały wybór dla rodzin poszukujących wygodnej i dobrze skomunikowanej lokalizacji w dynamicznie rozwijającej się części Wrocławia.
CENA:Powyższa oferta ma charakter informacyjny i nie stanowi oferty handlowej w rozumieniu art. 66 §1 Kodeksu Cywilnego.
Pośrednik odpowiedzialny zawodowo za wykonanie umowy pośrednictwa: Katarzyna Chajec (licencja nr: 23503).



