Na sprzedaż funkcjonalne mieszkanie 3-pokojowe na nowym, kameralnym osiedlu Nowy Dwór we Wrocławiu
Odbiór już w kwietniu 2026 roku!
Oferta bez prowizji i bez podatku PCC .
Możliwość wykończenia "pod klucz" według indywidualnych preferencji.
NIERUCHOMOŚĆ
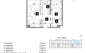
Słoneczne, funkcjonalne mieszkanie o powierzchni 51,92 m² usytuowane na I piętrze nowoczesnego budynku z windą.
Układ pomieszczeń:
salon z aneksem kuchennym i wyjściem na balkon
2 sypialnie,
łazienka z wc
przedpokój
dodatkowo balkon 4,03 m2
Mieszkanie zaprojektowane z myślą o maksymalnej funkcjonalności i komforcie użytkowania. Duże okna zapewniają naturalne doświetlenie i optycznie powiększają przestrzeń.
Cena: 705.240 PLN
Możliwość zakupu miejsca postojowego w garażu podziemnym oraz komórki lokatorskiej.
ATUTY INWESTYCJI
To osiedle kompletne, samowystarczalne, z pełną infrastrukturą handlowo-usługową, a do tego świetnie skomunikowane.
Wysoki standard wykonania, nowoczesna architektura
Funkcjonalne, jasne układy mieszkań
Każdy budynek wyposażony w windę
Osiedle monitorowane, z zieloną strefą relaksu i placem zabaw
Lokale usługowe na parterze – wygoda na co dzień
Możliwość wykończenia "pod klucz"
Dostępne mieszkania w różnych metrażach i na innych kondygnacjach
LOKALIZACJA– WROCŁAW, NOWY DWÓR
Inwestycja położona jest w dynamicznie rozwijającej się, zielonej części Wrocławia. Idealna dla rodzin i osób szukających wygody życia w mieście.
2 min spacerem do sklepu spożywczego
3 min pieszo do przystanku MPK
5 min rowerem do Parku Tysiąclecia
16 min autem do Rynku
W pobliżu żłobki, przedszkola, szkoły, uczelnie
Blisko centra handlowe: Factoria Park i Magnolia Park
Szybki dojazd do Autostradowej Obwodnicy Wrocławia
Dostępne również inne mieszkania 2-, 3- i 4-pokojowe w tej inwestycji.
Skontaktuj się i poznaj szczegóły oferty:
Danuta Chajec
Alfama Nieruchomości S.C.
Powyższa oferta ma charakter informacyjny i nie stanowi oferty handlowej w rozumieniu art. 66 § 1 Kodeksu Cywilnego.
Nota prawna
Opis oferty zawarty na stronie internetowej sporządzany jest na podstawie oględzin nieruchomości oraz informacji uzyskanych od właściciela, może podlegać aktualizacji i nie stanowi oferty określonej w art. 66 i następnych K.C.
Ta strona wykorzystuje pliki cookies w celach statystycznych oraz w celu dostosowania naszych serwisów do indywidualnych potrzeb klientów.
Zmiany ustawień dotyczących plików cookie można dokonać w dowolnej chwili modyfikując ustawienia przeglądarki.
Korzystanie z tej strony bez zmian ustawień dotyczących cookies oznacza, że będą one zapisane w pamięci urządzenia.