Wrocław, Fabryczna

Mieszkanie na sprzedaż

Opis nieruchomości

Na sprzedaż bardzo funkcjonalne 2 pokoje z kuchnią i balkonemw samym centrum  Wrocławia
Idealne na start lub pod inwestycję!

Gotowe pod koniec tego roku.
Oferta bez prowizji, bezpośrednio od dewelopera.



Zapraszam do kontaktu i umówienia się na prezentację, gdzie na makiecie 3D obejrzymy spacery wirtualne dostępnych jeszcze układów w tej inwestycji.



Największe atuty inwestycji:
  • Bardzo trakcyjna lokalizacja, tuż przy ul.Legnickiej
  • Bliskość do Rynku (10/15 minut pieszo)
  • Funkcjonalne rozkłady
  • Bezpośrednie sąsiedztwo Business Garden,Wrocławskiego Parku Przemysłowego, Millenium Towers, Carbon Tower oraz wielu innych biurowców oraz uczelni wyższych (Wyższa Szkoła Bankowa, Dolnośląska Szkoła Wyższa)
  • Doskonała komunikacja z resztą miasta-7 linii tramwajowych oraz kilkanaście autobusowych
  • Duży zielony taras widokowy na dachu do wyłącznej dyspozycji mieszkańców
  • Tuż przy osiedlu liczne lokale usługowe i handlowe m.in. Żabka, Rossmann,Biedronka,kawiarnia,restauracja,Fitness Academy, szkoła tańca
  • Elegancka strefa wejściowa i części wspólne budynku
  • Zielone patio i wyjątkowy ogród wertykalny

NIERUCHOMOŚĆ:


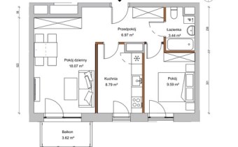
Funkcjonalne 2 pokoje usytuowane na siódmym piętrze apartamentowca-podobne  układy są też dostępne na wyższych kondygnacjach.
Wysoki standard wykończenia.

Lokal składa się z:
- przestronnego salonu 
- kuchni (możliwość połączenia z salonem)
- sypialni
- przedpokoju
- łazienki
+dodatkowo balkonu

Ekspozycja południowa.



CENA:

Mieszkanie: 702.000
Możliwość zakupu miejsca postojowego i komórki lokatorskiej.


Zakup zwolniony z podatku PCC.
Kupujący nie płaci prowizji.

Zdjęcia przedstawione w ofercie są wizualizacjami.
Lokal  jest oddawany w stanie deweloperskim, do własnej aranżacji.

TERMIN ODDANIA:Koniec 2026
 

Kasia Chajec

kasia@alfama-nieruchomosci.pl
Alfama Nieruchomości S.C.

Powyższa oferta ma charakter informacyjny i nie stanowi oferty handlowej w rozumieniu art. 66 §1 Kodeksu Cywilnego.

Pośrednik odpowiedzialny zawodowo za wykonanie umowy pośrednictwa: Katarzyna Chajec (licencja nr: 23503 )

Nota prawna

Opis oferty zawarty na stronie internetowej sporządzany jest na podstawie oględzin nieruchomości oraz informacji uzyskanych od właściciela, może podlegać aktualizacji i nie stanowi oferty określonej w art. 66 i następnych K.C.

Szczegóły oferty

Symbol oferty ALFM-MS-4212
Powierzchnia 47,00 m²
Liczba pokoi 2
Piętro 7
Rodzaj budynku apartamentowiec
Standard
Liczba pięter w budynku 9
Rok budowy 2026

Kalkulator kredytowy

EUR
%
Wysokość raty

Kalkulator kosztów

EUR
EUR
EUR
EUR
EUR
EUR
%
EUR
Podatek od czynności cywilno-prawnych
Taksa notarialna (opłata notarialna)
VAT od taksy notarialnej (opłaty notarialnej)
Wniosek do WKW
VAT od wniosku do WKW
Prowizja agencji nieruchomości
VAT od prowizji agencji nieruchomości
Wypisy aktu notarialnego - około
RAZEM (cena + opłaty)

Podobne oferty

mieszkanie na sprzedaż - Wrocław, Stare Miasto

mieszkanie na sprzedaż

Wrocław, Stare Miasto
2 pokoje 38,00 m2 19 471,05 zł/m2 4 609,51 EUR/m2
mieszkanie na sprzedaż - Wrocław, Krzyki

mieszkanie na sprzedaż

Wrocław, Krzyki
3 pokoje 55,30 m2 12 296,56 zł/m2 2 911,05 EUR/m2
mieszkanie na sprzedaż - Wrocław, Psie Pole, Lipa Piotrowska

mieszkanie na sprzedaż

Wrocław, Psie Pole, Lipa Piotrowska
3 pokoje 56,00 m2 11 196,43 zł/m2 2 650,61 EUR/m2
nowa oferta
mieszkanie na sprzedaż - Wrocław, Krzyki

mieszkanie na sprzedaż

Wrocław, Krzyki
3 pokoje 52,00 m2 13 115,38 zł/m2 3 104,89 EUR/m2

Napisz do nas

Proszę wypełnić to pole
Proszę wypełnić to pole
Proszę wypełnić to pole
Proszę wypełnić to pole
Trwa wysyłanie...

Ta strona wykorzystuje pliki cookies w celach statystycznych oraz w celu dostosowania naszych serwisów do indywidualnych potrzeb klientów. Zmiany ustawień dotyczących plików cookie można dokonać w dowolnej chwili modyfikując ustawienia przeglądarki. Korzystanie z tej strony bez zmian ustawień dotyczących cookies oznacza, że będą one zapisane w pamięci urządzenia.

rozumiem