Wrocław, Fabryczna, Maślice

Mieszkanie na sprzedaż

Opis nieruchomości

Na sprzedaż piękne,narożne mieszkanie  3-pokojowe z dużym ogródkiem na nowym,kameralnym osiedlu na Maślicach.
Klucze gotowe do odbioru już w listopadzie/grudniu tego roku!

Oferta deweloperska, bez prowizji, bez PCC.


NIERUCHOMOŚĆ:

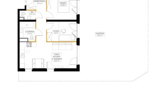
Funkcjonalne mieszkanie 3-pokojowe o powierzchni  ok.56m2 usytuowane na parterze kameralnego budynku wielorodzinnego-ten sam układ jest też dostępny na wyższych kondygnacjach.
Wysoki standard wykończenia.
Mieszkanie składa się z przestronnego salonu z aneksem kuchennym, 2 sypialni, ustawnego przedpokoju,  łazienki,wc  oraz dodatkowo ogródka o powierzchni ok.94m2.
Ekspozycja wschód/południe.



LOKALIZACJA:

Maślice to jedna z najbardziej zielonych części Wrocławia. Okolica osiedla jest atrakcyjna dla rodzin i osób prowadzących aktywny styl życia.W częściach wspólnych osiedla  powstanie bogata, atrakcyjnie zaaranżowana zieleń z ławkami, zachęcająca do odpoczynku i relaksu. Do dyspozycji mieszkańców będzie również garaż podziemny i parking przy budynku, plac zabaw dla dzieci oraz  komórki lokatorskie.

Największe atuty lokalizacji:

•  szybki dojazd do centrum i wyjazd poza miasto (trasa A8  i most Rędziński)

•  bliskość centrów handlowych (Pasaż Królewiecki, N-Park w których znajdują się m.in Action, Biedronka, Empik, Rossmann,Fitness Academy), licznych kawiarni i piekarni

•  sąsiedztwo terenów zielonych i rekreacyjnych, kąpielisko Glinianki  oraz Kąpielisko Królewiecka

•  bliskość szkoły i przedszkoli
• przystanek autobusowy przy osiedlu

Informacje dodatkowe:

* Osiedle monitorowane
* Rolety elektrycznie na parterze
* Ogrzewanie miejskie

CENA:

Mieszkanie: 667.300 PLN
Możliwość zakupu m.postojowego w hali garażowej i komórki lokatorskiej.


Zakup zwolniony z podatku PCC.

Kupujący nie płaci prowizji.



Zdjęcia przedstawione w ofercie są wizualizacjami.

Mieszkanie jest oddawane w stanie deweloperskim, do własnej aranżacji. Oferujemy pomoc w wykończeniu mieszkania pod klucz oraz uzyskaniu kredytu na zakup nieruchomości.


Posiadamy w swojej ofercie inne mieszkania 1-4 pokojowe w tej inwestycji oraz na innych osiedlach na Maślicach.Zapraszam do kontaktu.

Kasia Chajec
tel.+ 48 882 714 302
kasia@alfama-nieruchomosci.pl
Alfama Nieruchomości S.C.
|

 

Powyższa oferta ma charakter informacyjny i nie stanowi oferty handlowej w rozumieniu art. 66 §1 Kodeksu Cywilnego.

Pośrednik odpowiedzialny zawodowo za wykonanie umowy pośrednictwa: Katarzyna Chajec (licencja nr: 23503).

Nota prawna

Opis oferty zawarty na stronie internetowej sporządzany jest na podstawie oględzin nieruchomości oraz informacji uzyskanych od właściciela, może podlegać aktualizacji i nie stanowi oferty określonej w art. 66 i następnych K.C.

Szczegóły oferty

Symbol oferty ALFM-MS-3957
Powierzchnia 55,66 m²
Powierzchnia użytkowa 55,66 m²
Powierzchnia balkonów/tarasów 9,92 m²
Liczba pokoi 3
Piętro parter
Rodzaj budynku apartamentowiec
Standard
Opłaty wg liczników CO, prąd, woda
Liczba pięter w budynku 3
Garaż garaż pod budynkiem
Stan lokalu deweloperski
Stan prawny Własność
Okna PCV
Balkon duży
Liczba balkonów 1
Rok budowy 2025
Otoczenie działki zabudowane
Ogrzewanie C.O. miejskie
Winda tak
Liczba wind 1
Rolety antywłamaniowe tak

Pomieszczenia

Rodzaj kuchni aneks kuchenny - połączony z salonem
Typ łazienki razem z wc
Liczba przedpokoi 1

Lokalizacja

Kalkulator kredytowy

EUR
%
Wysokość raty

Kalkulator kosztów

EUR
EUR
EUR
EUR
EUR
EUR
%
EUR
Podatek od czynności cywilno-prawnych
Taksa notarialna (opłata notarialna)
VAT od taksy notarialnej (opłaty notarialnej)
Wniosek do WKW
VAT od wniosku do WKW
Prowizja agencji nieruchomości
VAT od prowizji agencji nieruchomości
Wypisy aktu notarialnego - około
RAZEM (cena + opłaty)

Podobne oferty

mieszkanie na sprzedaż - Wrocław, Psie Pole, Lipa Piotrowska

mieszkanie na sprzedaż

Wrocław, Psie Pole, Lipa Piotrowska
2 pokoje 42,20 m2 12 985,78 zł/m2 3 074,94 EUR/m2
mieszkanie na sprzedaż - Wrocław, Psie Pole, Lipa Piotrowska

mieszkanie na sprzedaż

Wrocław, Psie Pole, Lipa Piotrowska
3 pokoje 55,00 m2 11 170,91 zł/m2 2 645,19 EUR/m2
mieszkanie na sprzedaż - Wrocław, Psie Pole, Sołtysowice

mieszkanie na sprzedaż

Wrocław, Psie Pole, Sołtysowice
2 pokoje 44,00 m2 13 295,45 zł/m2 3 148,27 EUR/m2
mieszkanie na sprzedaż - Wrocław, Psie Pole, Lipa Piotrowska

mieszkanie na sprzedaż

Wrocław, Psie Pole, Lipa Piotrowska
3 pokoje 55,00 m2 10 570,91 zł/m2 2 503,12 EUR/m2

Napisz do nas

Proszę wypełnić to pole
Proszę wypełnić to pole
Proszę wypełnić to pole
Proszę wypełnić to pole
Trwa wysyłanie...

Ta strona wykorzystuje pliki cookies w celach statystycznych oraz w celu dostosowania naszych serwisów do indywidualnych potrzeb klientów. Zmiany ustawień dotyczących plików cookie można dokonać w dowolnej chwili modyfikując ustawienia przeglądarki. Korzystanie z tej strony bez zmian ustawień dotyczących cookies oznacza, że będą one zapisane w pamięci urządzenia.

rozumiem