Wrocław, Krzyki, Partynice

Mieszkanie na sprzedaż

Opis nieruchomości

Do sprzedaży słoneczne,ustawne  mieszkanie 2-pokojowe z dużym balkonem (możliwość wydzielenia kuchni) na pięknym, zielonym osiedlu w samym sercu Partynic.

TERMIN UKOŃCZENIA:  Gotowe w I kwartale 2026

We speak English-call us!
 

Dostępne różne układy mieszkań na wszystkich piętrach - zadzwoń i umów się na prezentację gdzie na makiecie 3D obejrzymy wszystkie dostępne jeszcze układy,widok z okna oraz możliwe aranżacje wnętrz!
 

Dlaczego warto współpracować ze mną przy zakupie nieruchomości z rynku pierwotnego?

 

  • Oszczędzasz czas -zamiast przeszukiwać dziesiątki ofert i dzwonić do różnych biur – kontaktujesz się tylko ze mną, a ja przedstawiam najlepsze opcje pod Twoje potrzeby
  • Dostęp do najlepszych inwestycji – współpracuję bezpośrednio z wieloma sprawdzonymi deweloperami. Mam dostęp do pełnej oferty – mieszkań w promocji oraz mieszkań, które nie są jeszcze dostępne publicznie
  • Kompleksowe doradztwo – pomagam na każdym etapie zakupu: od wyboru idealnego osiedla, mieszkania, przez negocjacje cen (gwarancja najniższej możliwej ceny) oraz harmonogramu płatności,analizie umowy deweloperskiej aż po odbiór kluczy
  • Bez prowizji od kupującego
  • Wsparcie inwestycyjne – jeśli kupujesz na wynajem, doradzam w kwestii zwrotu z inwestycji, a także pomagam znaleźć najemcę i zajmuję się obsługą najmu


NIERUCHOMOŚĆ

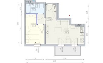
Słoneczne,  ustawne mieszkanie 2-pokojowe o powierzchni 39,26m2 usytuowane na szóstym piętrze budynku wielorodzinnego.Wysoki standard wykończenia.

Mieszkanie składa się z salonu z aneksem kuchennym-możliwość wydzielenia kuchni,  sypialni, łazienki,ustawnego przedpokoju oraz dodatkowo dużego balkonu(5,30m2).

Ekspozycja wschodnia( w ofercie mamy też podobne układy z różną ekspozycją)



Największe atuty inwestycji:
  • Najbardziej zielona i prestiżowa część Krzyków-Partynice
  • Doskonała lokalizacja-20 min do Rynku i 10 minut na Bielany Wrocławskie
  • 300 metrów od przystanku tramwajowego,700 metrów do stacji kolejowej Wrocław Partynice
  • Wszystko, co niezbędne do wygodnego życia, znajduje się  w odległości spaceru
  • Bezpośrednie sąsiedztwo 2 parków (Park Kleciński i Park Południowy), licznych obiektów sportowych, placówek edukacyjnych, kawiarni, piekarni, restauracji i lokali usługowych
  • Na terenie osiedla liczne udogodnienia m.in.klub mieszkańca ze strefa coworkingową i kinową,pięknie zaprojektowane części wspólne,całodobowy monitoring
LOKALIZACJA: Krzyki-Partynice



CENA

Mieszkanie: 573.000 PLN-cena promocyjna

Możliwość zakupu m.postojowego.

Kupujący nie płaci prowizji.




Zdjęcia przedstawione w ofercie są wizualizacjami.

Mieszkanie jest oddawane w stanie deweloperskim, do własnej aranżacji. Oferujemy pomoc w wykończeniu mieszkania pod klucz oraz uzyskaniu kredytu na zakup nieruchomości.
Posiadamy w swojej ofercie inne mieszkania 2,3,4 i 5 pokojowe na tym osiedlu oraz innych inwestycjach w okolicy. Zapraszam do kontaktu.

Kasia Chajec
tel.+ 48 882 714 302
kasia@alfama-nieruchomosci.pl
Alfama Nieruchomości S.C.

 

Powyższa oferta ma charakter informacyjny i nie stanowi oferty handlowej w rozumieniu art. 66 §1 Kodeksu Cywilnego.

 

Pośrednik odpowiedzialny zawodowo za wykonanie umowy pośrednictwa: Katarzyna Chajec (licencja nr: 23503 )




 

Nota prawna

Opis oferty zawarty na stronie internetowej sporządzany jest na podstawie oględzin nieruchomości oraz informacji uzyskanych od właściciela, może podlegać aktualizacji i nie stanowi oferty określonej w art. 66 i następnych K.C.

Szczegóły oferty

Symbol oferty ALFM-MS-4165
Powierzchnia 39,26 m²
Powierzchnia użytkowa 39,26 m²
Liczba pokoi 2
Piętro 6
Rodzaj budynku nowe budownictwo
Standard
Liczba pięter w budynku 8
Garaż garaż podziemny
Stan lokalu deweloperski
Okna PCV
Balkon jest
Liczba balkonów 1
Rok budowy 2026
Plac zabaw tak
Woda ciepła - miejska
Dojazd asfalt
Otoczenie park
Ogrzewanie C.O. miejskie
Odległość do komunikacji publicznej [m] 150 m
Odl. do sklepu [m] 300 m
Odl. do szkoły [m] 300 m
Winda tak

Kalkulator kredytowy

EUR
%
Wysokość raty

Kalkulator kosztów

EUR
EUR
EUR
EUR
EUR
EUR
%
EUR
Podatek od czynności cywilno-prawnych
Taksa notarialna (opłata notarialna)
VAT od taksy notarialnej (opłaty notarialnej)
Wniosek do WKW
VAT od wniosku do WKW
Prowizja agencji nieruchomości
VAT od prowizji agencji nieruchomości
Wypisy aktu notarialnego - około
RAZEM (cena + opłaty)

Podobne oferty

mieszkanie na sprzedaż - Wrocław, Psie Pole, Lipa Piotrowska

mieszkanie na sprzedaż

Wrocław, Psie Pole, Lipa Piotrowska
2 pokoje 42,20 m2 12 985,78 zł/m2 3 077,78 EUR/m2
mieszkanie na sprzedaż - Wrocław, Psie Pole, Lipa Piotrowska

mieszkanie na sprzedaż

Wrocław, Psie Pole, Lipa Piotrowska
3 pokoje 55,00 m2 11 170,91 zł/m2 2 647,64 EUR/m2
mieszkanie na sprzedaż - Wrocław, Psie Pole, Sołtysowice

mieszkanie na sprzedaż

Wrocław, Psie Pole, Sołtysowice
2 pokoje 44,00 m2 13 295,45 zł/m2 3 151,18 EUR/m2
mieszkanie na sprzedaż - Wrocław, Psie Pole, Lipa Piotrowska

mieszkanie na sprzedaż

Wrocław, Psie Pole, Lipa Piotrowska
3 pokoje 55,00 m2 10 570,91 zł/m2 2 505,43 EUR/m2

Napisz do nas

Proszę wypełnić to pole
Proszę wypełnić to pole
Proszę wypełnić to pole
Proszę wypełnić to pole
Trwa wysyłanie...

Ta strona wykorzystuje pliki cookies w celach statystycznych oraz w celu dostosowania naszych serwisów do indywidualnych potrzeb klientów. Zmiany ustawień dotyczących plików cookie można dokonać w dowolnej chwili modyfikując ustawienia przeglądarki. Korzystanie z tej strony bez zmian ustawień dotyczących cookies oznacza, że będą one zapisane w pamięci urządzenia.

rozumiem