Wrocław, Krzyki, Ołtaszyn

Lokal na sprzedaż

Opis nieruchomości

Zakup bez prowizji, bez podatku PCC.
Polecam lokal handlowo- usługowy  Krzyki/ Ołtaszyn

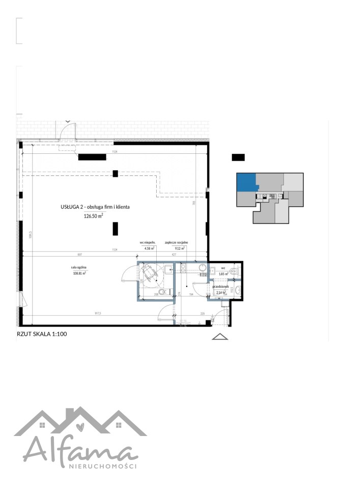
Lokal o powierzchni 126,50 m2

Dodatkowe informacje:
- Lokal  usytuowany  na parterze nowego  budynku mieszkalnego, bardzo dobrze  widoczny z ulicy
- duży ruch,łatwy dostęp dla klentów
- rolety zewnętrzne elektryczne
- wysokość 3,3 m
- wystawa południowy- wschód
- lokal spełnia warunki do prowadzenia różnego rodzaju działalności:  usługi medyczne, biurowe, usługi
  kosmetyczne,  handel
-  dogodny  dojazd  do centrum komunikacją miejską ( autobus), szybki dojazd do A 4 i AOW.

Do lokalu można zakupić miejsce postojowe.
Stan deweloperski, do własnej aranżacji.
Termin zakończenia inwestycji I kW 2025 r

Układ lokalu:

*sala sprzedaży
* wc
* pomieszczenie socjalne
* przedsionek
Cena netto  1.190.698 PLN


Plecam i zapraszam na prezentację.

Alfama Nieruchomści
Danuta Chajec
tel. 516 250 875

Powyższa oferta ma charakter informacyjny i nie stanowi oferty handlowej w rozumieniu art. 66 §1 Kodeksu Cywilnego.

Nota prawna

Opis oferty zawarty na stronie internetowej sporządzany jest na podstawie oględzin nieruchomości oraz informacji uzyskanych od właściciela, może podlegać aktualizacji i nie stanowi oferty określonej w art. 66 i następnych K.C.

Szczegóły oferty

Symbol oferty ALFM-LS-3965
Powierzchnia 126,60 m²
Powierzchnia użytkowa 126,60 m²
Piętro parter
Rodzaj budynku blok
Standard
Opłaty wg liczników CO, prąd, woda
Liczba pięter w budynku 2
Stan lokalu deweloperski
Stan prawny Własność
Okna PCV
Instalacje nowe
Rok budowy 2025
Rodzaj lokalu jednopoziomowy
Przeznaczenie lokalu handlowo-usługowy, handlowy, usługowy
Winda tak
Liczba wind 1
Usytuowanie jednostronne
Możliwość parkowania tak
Własny parking tak
Położenie lokalu ulica osiedlowa
Wejście od ulicy

Lokalizacja

Kalkulator kredytowy

EUR
%
Wysokość raty

Kalkulator kosztów

EUR
EUR
EUR
EUR
EUR
EUR
%
EUR
Podatek od czynności cywilno-prawnych
Taksa notarialna (opłata notarialna)
VAT od taksy notarialnej (opłaty notarialnej)
Wniosek do WKW
VAT od wniosku do WKW
Prowizja agencji nieruchomości
VAT od prowizji agencji nieruchomości
Wypisy aktu notarialnego - około
RAZEM (cena + opłaty)

Podobne oferty

lokal na sprzedaż - Wrocław, Krzyki

lokal na sprzedaż

Wrocław, Krzyki
2 pokoje 152,00 m2 7 297,67 zł/m2 1 723,06 EUR/m2
bez prowizji
lokal na sprzedaż - Wrocław, Fabryczna

lokal na sprzedaż

Wrocław, Fabryczna
1 pokój 123,00 m2 7 555,28 zł/m2 1 783,88 EUR/m2
lokal na sprzedaż - Wrocław, Krzyki

lokal na sprzedaż

Wrocław, Krzyki
2 pokoje 137,00 m2 10 040,88 zł/m2 2 370,76 EUR/m2
lokal na sprzedaż - Wrocław

lokal na sprzedaż

Wrocław
1 pokój 89,00 m2 11 021,00 zł/m2 2 602,18 EUR/m2

Napisz do nas

Proszę wypełnić to pole
Proszę wypełnić to pole
Proszę wypełnić to pole
Proszę wypełnić to pole
Trwa wysyłanie...

Ta strona wykorzystuje pliki cookies w celach statystycznych oraz w celu dostosowania naszych serwisów do indywidualnych potrzeb klientów. Zmiany ustawień dotyczących plików cookie można dokonać w dowolnej chwili modyfikując ustawienia przeglądarki. Korzystanie z tej strony bez zmian ustawień dotyczących cookies oznacza, że będą one zapisane w pamięci urządzenia.

rozumiem